T2 Neuf en Rez-de-Jardin 42,69 m2 + Terrasse & Jardin Ré

  • 209 000€
Viuz-en-Sallaz

T2 Neuf en Rez-de-Jardin 42,69 m2 + Terrasse & Jardin Ré

74250, Viuz-en-Sallaz
  • 209 000€
Achat
  • Appartement
  • Type de bien
  • 2
  • Pièces
  • 1
  • Chambre
  • 42.69
  • m² hab.

Description du logement

Livraison 2027 o Prestations haut de gamme o Idéal primo-accédants
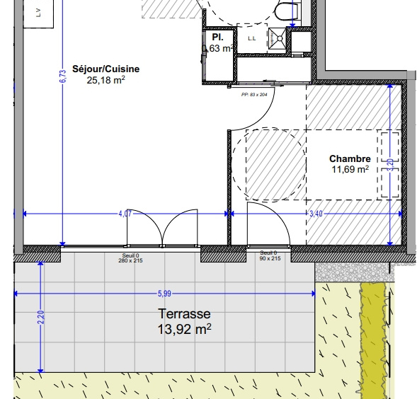
Découvrez ce charmant T2 de 42,69 m2, situé en rez-de-chaussée dans la résidence neuve Les Roches, au coeur d’un environnement calme et verdoyant, route des Brasses. Sa terrasse de 13,92 m2 prolongée par un jardin privatif de 24,23 m2 offre un véritable espace extérieur rare et recherché dans le secteur.
Les atouts du logement 

Séjour/cuisine lumineux de 25,18 m2, ouvert sur la terrasse et le jardin.

Chambre de 11,69 m2, idéalement agencée.

Salle d’eau avec WC de 5,19 m2.

Placard intégré dans l’entrée

Terrasse de 13,92 m2 et jardin de 24,23 m2, parfaits pour profiter des beaux jours.

Plan parfaitement optimisé, sans perte d’espace.

Un appartement fonctionnel, lumineux et très agréable à vivre.
Prestations haut de gamme du programme : 
Confort & qualité

Menuiseries PVC double vitrage, volets roulants électriques.

Chauffage individuel par chaudière gaz à condensation.

Radiateurs à eau chaude + sèche-serviettes dans la salle d’eau.

VMC hygroréglable.

Fibre optique, prises RJ45 dans séjour et chambre.

Finitions modernes

Carrelage 60×60 cm dans les pièces de vie.

Sol stratifié dans la chambre.

Peintures blanches finition velours.

Salle d’eau équipée : meuble vasque, miroir, bandeau LED, receveur de douche.

Terrasse avec dalles béton sur plots.

 
Un cadre de vie privilégié
La commune de Viuz-en-Sallaz séduit par :

Son environnement naturel, paisible et verdoyant.

Sa proximité directe avec les grands axes vers Genève, Annemasse, Bonneville et les stations.

Ses commerces, écoles et services accessibles rapidement.

Idéal pour un premier achat ou une résidence principale avec un beau confort de vie
 
Pourquoi choisir ce T2 ?

Extérieur généreux : terrasse + jardin privatif.

Logement neuf, économe et conforme aux normes RE 2020.

Prestations de standing.

Environnement calme.

Idéal pour célibataire, couple ou primo-accédant

 
Envie d’en savoir plus ou de réserver  ?
Contactez-moi ! Je vous accompagnerai, avec plaisir, dans l’ensemble de votre projet.

Détails du bien

  • Réf 18_B202
  • Prix 209 000€
  • Taille 42.69 m² hab.
  • Chambre 1
  • Pièces 2
  • Statut du bien Achat
  • Type de bien Appartement

Détails supplémentaires

  • Charges honoraires Vendeur
  • Surface séjour 25m²
  • Chauffage Individuel gaz
  • Exposition Est Sud
  • Nombre d'étages 2
  • Copropriété oui
  • Nombre de lots 1
  • Procédures non

Caractéristiques

Classe énergétique

Diagnostic de performance énergétique

DPE vierge Consommations non exploitables
* Dont émissions de gaz à effet de serre
GES vierge Consommations non exploitables

Géorisques

Les informations sur les risques auxquels ce bien est exposé sont disponibles sur le site Géorisques : www.georisques.gouv.fr.

Contactez l'agence immobilière

PEAK IMMOBILIER BONNE

Derniers biens visités

Biens immobiliers similaires

Comparer les annonces

Comparer
PEAK IMMOBILIER BONNE
  • PEAK IMMOBILIER BONNE