Cession de droit au bail Emplacement Premium face au lac

  • 20 000€
ANNECY

Cession de droit au bail Emplacement Premium face au lac

74000, ANNECY
  • 20 000€
Cession de bail
  • Local
  • Type de bien
  • 228.24
  • m² hab.

Description du logement

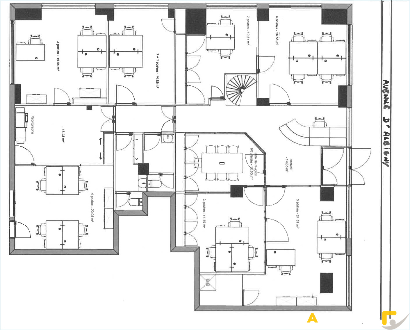
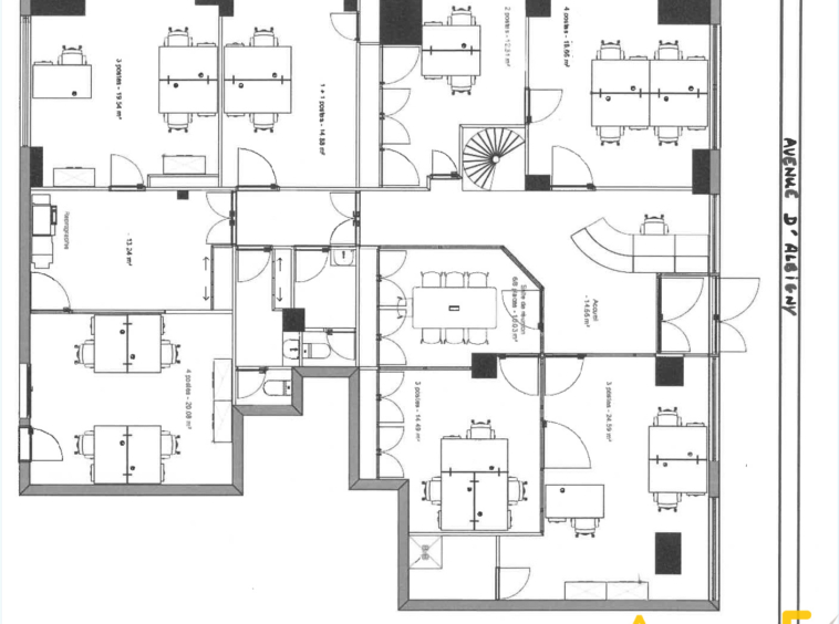
Situé face au lac d’Annecy, sur l’une des artères les plus prestigieuses de la ville, ce local bénéficie d’un emplacement exceptionnel offrant une visibilité maximale grâce à ses 9 vitrines totalisant 24 mètres linéaires. Superficie totale : 228.24 m2 sur 2 niveaux.
Aménagé avec soin, il propose un espace de travail fonctionnel :

Rez-de-chaussée : accueil spacieux, 7 bureaux lumineux, salle de réunion, 2 WC

Niveau -1 : espace archives et rangements

Chauffage base au sol et convecteurs, confort optimal toute l’année

Capacité d’accueil : jusqu’à 23 collaborateurs

Loyer annuel : 66 000 EUR HTCharges annuelles : 5 600 EUR (incluant eau chaude, chauffage, ordures ménagères et entretien des espaces verts)

Les atouts :

Emplacement premium face au lac

Grande façade vitrée assurant visibilité et luminosité

Bail longue durée jusqu’en 2034

Idéal pour activités immobilières, bancaires, d’assurance ou de conseil

Une opportunité rare sur le secteur pour implanter votre enseigne dans un cadre prestigieux et stratégique.
Contactez-nous dès maintenant pour plus d’informations ou planifier une visite.
Les informations sur les risques auxquels ce bien est exposé sont disponibles sur le site Géorisques : www.georisques.gouv.fr

Détails du bien

  • Réf 3_301025
  • Prix 20 000€
  • Taille 228.24 m² hab.
  • Statut du bien Cession de bail
  • Type de bien Local

Détails supplémentaires

  • Prix hors honoraires 20000€
  • Honoraires 0.00%
  • Provisions sur charges 5600€
  • Dépot garantie 16500€
  • Chauffage Individuel électrique radiateur

Classe énergétique

Diagnostic de performance énergétique

DPE vierge Consommations non exploitables
* Dont émissions de gaz à effet de serre
GES vierge Consommations non exploitables

Géorisques

Les informations sur les risques auxquels ce bien est exposé sont disponibles sur le site Géorisques : www.georisques.gouv.fr.

Contactez l'agence immobilière

PEAK IMMOBILIER ANNECY ET ANNECY-LE-VIEUX

Derniers biens visités

Comparer les annonces

Comparer
PEAK IMMOBILIER ANNECY ET ANNECY-LE-VIEUX
  • PEAK IMMOBILIER ANNECY ET ANNECY-LE-VIEUX